Die Meldung in Bildern
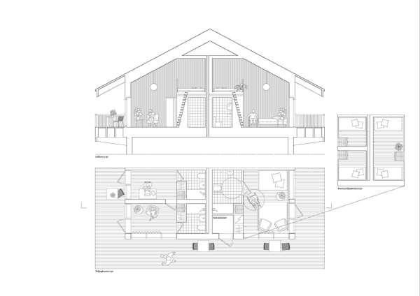
Holzbaulabor im Wald
Rudanko + Kankkunen planen in Finnland
Bild 12/21
Unterkunft, Beispiel A
Bild: Rudanko + Kankkunen