Die Meldung in Bildern
Kita mit Radondichtung
Roland Baldi Architects im Pustertal
Bild 32/33
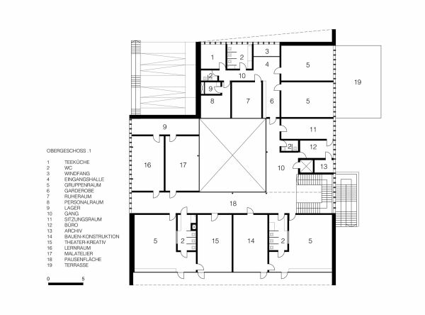
Grundriss Obergeschoss
Bild: Roland Baldi Architects