Die Meldung in Bildern
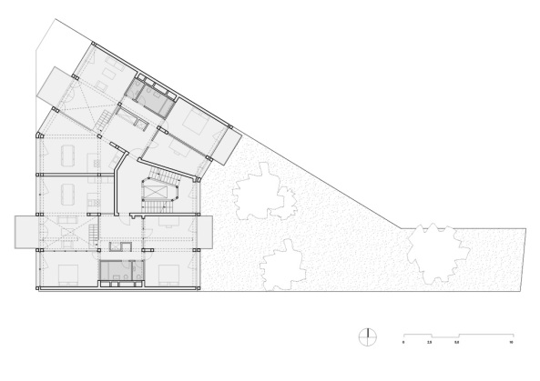
Berlin: Rote Lofts am Gleisbett
Robertneun über das Wohnen am Lokdepot
Bild 26/27
Bild: Robertneun