Remise in Berlin von JWA mit Ralf Wilkening
Bild 13/16
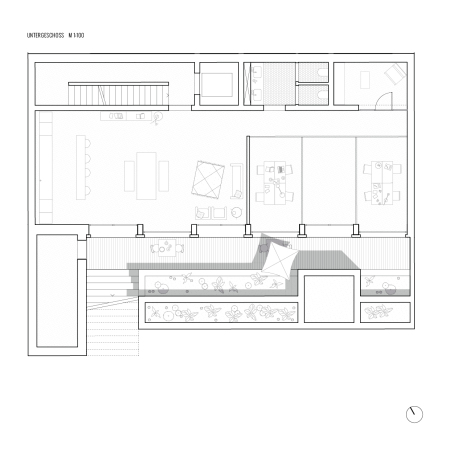
Grundriss Untergeschoss
Bild: Jan Wiese Architekten