Reihenhaussanierung von Sven Wiebe Architekten
Bild 18/22
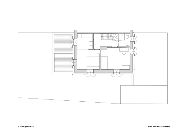
Grundriss Obergeschoss
Bild: Sven Wiebe Architekten