Die Meldung in Bildern
Verrutscht
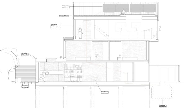
Reihenhaus von Carl Turner in London
Bild 15/19
Bild: Carl Turner Architects