Die Meldung in Bildern
Klarheit in der Peripherie
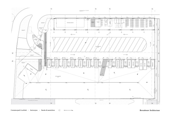
Recyclinghöfe in Antwerpen von Bovenbouw
Bild 14/22
Antwerpen-Luchtbal: Lageplan
Bild: Bovenbouw