Die Meldung in Bildern
Kleines Weißes in Hamburg
Rechenzentrum von spine architects
Bild 14/19
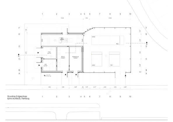
Grundriss
Bild: spine architects