Die Meldung in Bildern
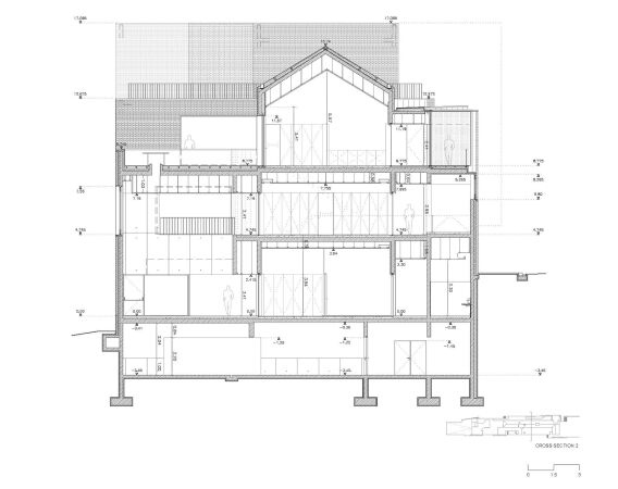
Kommune statt Kornverarbeitung
Rathaus in Trofa von NOARQ
Bild 51/54
Schnitt 2
Bild: NOARQ