Die Meldung in Bildern
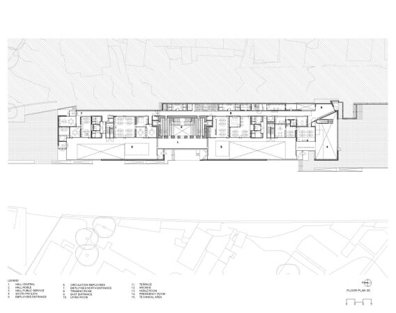
Kommune statt Kornverarbeitung
Rathaus in Trofa von NOARQ
Bild 44/54
Grundriss Erdgeschoss
Bild: NOARQ