Die Meldung in Bildern
Rohstoff Moderne
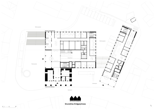
Rathaus-Ersatzbau in Korbach von heimspiel und agn
Bild 11/15
Grundriss Erdgeschoss