Die Meldung in Bildern
Ein Palast mit Bungalows
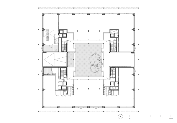
Quartiersblock von Kempe Thill in Antwerpen
Bild 34/42
Grundriss Erdgeschoss
Bild: Kempe Thill