Die Meldung in Bildern
Bewegung auf dem ETH-Dach
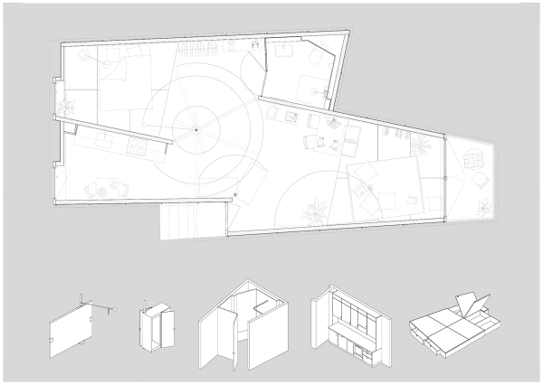
Prototyp von Elli Mosayebi in Zürich
Bild 11/19
Bild: © Edelaar Mosayebi Inderbitzin Architekten