Die Meldung in Bildern
Montana, Mustangs, Holzhofhaus
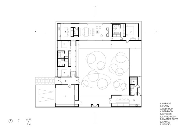
Privates Wohnhaus von Barkow Leibinger
Bild 26/33
Grundriss
Bild: Barkow Leibinger