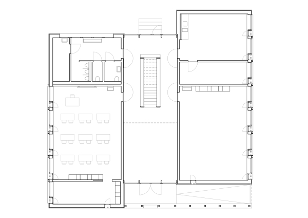
Primarschule in Thun von Lanzrein + Partner
Bild 13/16
Grundriss Erdgeschoss
Bild: Lanzrein + Partner