Praeger Richter Architekten in Bad Belzig
Bild 27/29
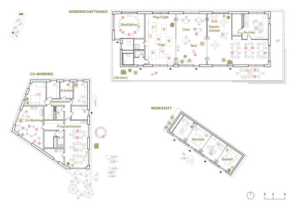
Grundriss Gemeinschaftshäuser
Bild: Praeger Richter Architekten