Die Meldung in Bildern
Hochtechnisiertes Holzhaus
Plusenergie-Forschungsbau in Cambridge von Snøhetta
Bild 22/26
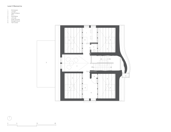
Zwischengeschoss