Pläne für Europäische Bibliothek in Mailand
Bild 14/22
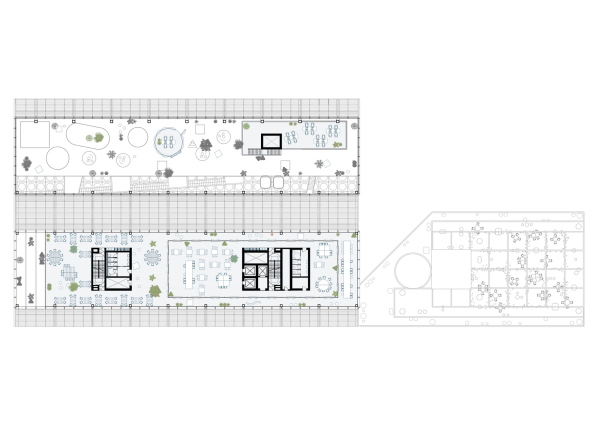
Grundriss 6. Obergeschoss
Bild: Onsitestudio, baukuh, YellowOffice, dotdotdot, (ab)Normal, atmos lab