Die Meldung in Bildern
Scharnier im Museumskomplex
Pläne für Erweiterung in Lissabon
Bild 16/25
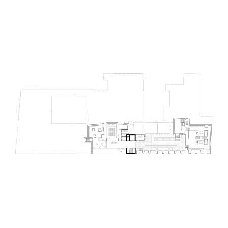
Erdgeschoss
Bild: Baile Menduiña