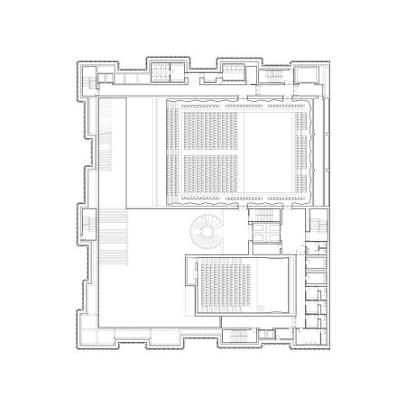
Philharmonie, Stettin, Sczeczin, Barozzi Veiga, philharmony, music theatre, architecture in poland, Architektur in Polen, Simon Menges, Radek Kurzaj, construction site, concert hall, Konzerthaus in Stettin, Lichtbox, Konzertsaal, Philharmonie, Glas, Treppe, Kammermusiksaal, Black Box, zweischalige Glasfassade, Fabrizio Barozzi , Alberto Veiga, PHILHARMONIC HALL, Szcecin, Poland, STUDIO A4, Accoustics, Akustik, Baunetz, uncube, Konzert, Musik, Fassade

Bild 12/17