Die Meldung in Bildern
Camouflage zwischen Zypressen
Pflegeheim in der Toskana von LDA_iMdA
Bild 36/41
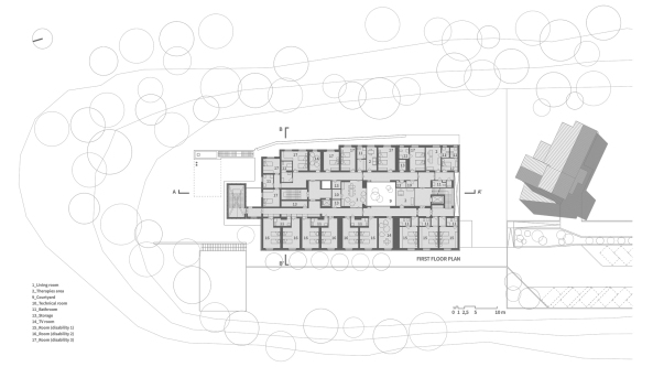
1. Obergeschoss
Bild: LDA_iMdA