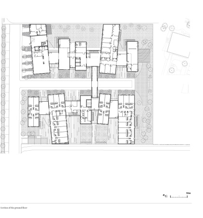
Elizabeth Naud,  Luc Poux, Pflegeheim, nursery home, Villejuif, Paris, aluminium panels, BauNetz, uncube

Bild 10/13