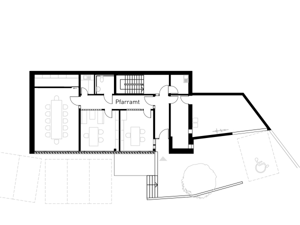
Pfarrheim von Spiecker Sautter Lauer Architekten
Bild 16/19
Hanggeschoss (Sockelgeschoss)
Bild: Spiecker Sautter Lauer Architekten