Die Meldung in Bildern
Fensterlos glücklich
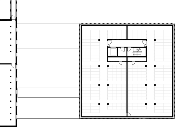
Peter W. Schmidt Architekten erweitern Staatsarchiv Bamberg
Bild 17/20
RG
Bild: Peter W. Schmidt