Die Meldung in Bildern
So wohnt es sich im Wabenhaus
Peter Haimerl Architektur in München
Bild 30/35
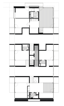
Grundriss Ebene 2
Bild: Peter Haimerl Architektur