Pavillon, Hidden Pavilion, penelas architects, madrid, las Rozas, Wasserfall, Eichenwald, gerosteter Stahl, Vollverglasung, Transparenz, Lichtkamin, Spindeltreppe, Dachterrasse, Miguel de Guzmán

Bild 32/33

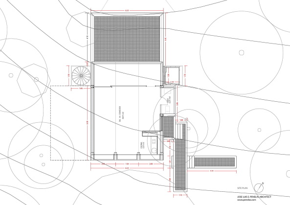
Erdgeschoss