Die Meldung in Bildern
Vorarlberger Holzhütte
Patiohaus in Österreich fertig
Bild 6/13
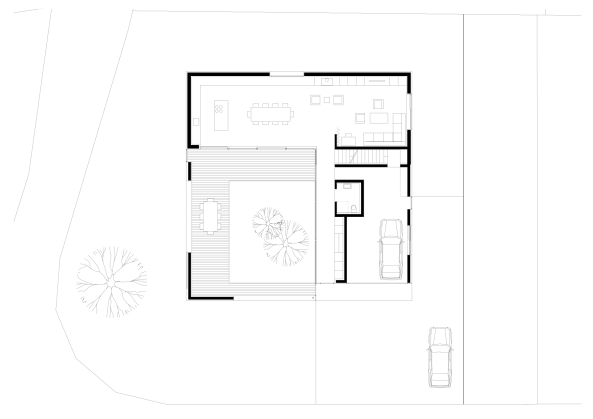
Grundriss EG