Die Meldung in Bildern
Leicht abwischbar
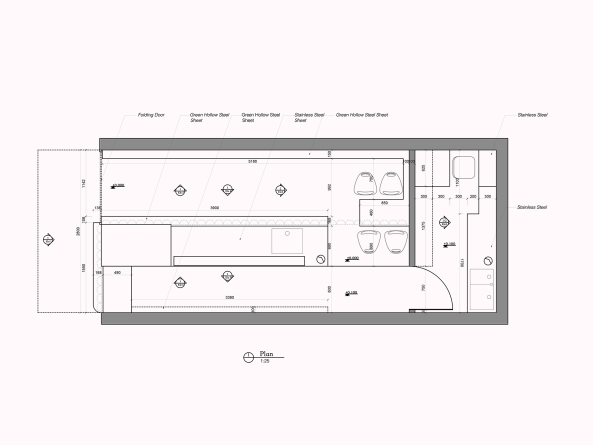
Pastellgrüner Saftladen von dongqi architects in Shanghai
Bild 12/17