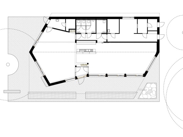
Parkpavillon in Anderlecht von Carton123 architecten
Bild 15/18
Grundriss EG
Bild: Carton123 architecten