Panorama-Café in China von Trace Architecture Office
Bild 33/34
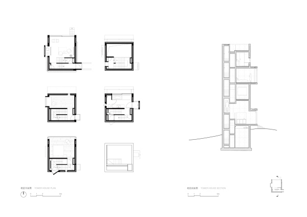
Grundrisse und Schnitt Wohnturm
Bild: Trace Architecture Office TAO