Die Meldung in Bildern
Ein Haus zieht um
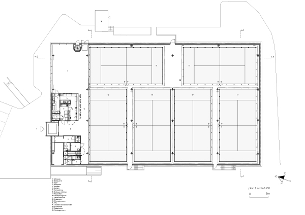
Padel-Tennishalle in Mölnlycke von Tengbom
Bild 19/32
Grundriss Erdgeschoss
Bild: Tengbom