Die Meldung in Bildern
Order Matter in Seoul
">Wenn Wohnen zum Retreat wird
Order Matter in Seoul
">
Order Matter in Seoul
Bild 30/38
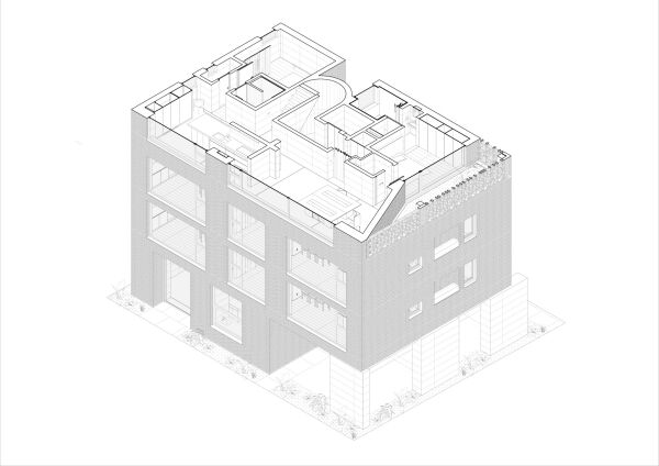
Isometrischer Grundriss
Bild: Order Matter