Die Meldung in Bildern
Euro, Cent und Zentimeter
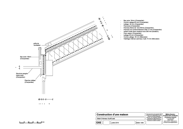
Open Source House von studiolada in Baccarat
Bild 35/52
Bild: studiolada architectes