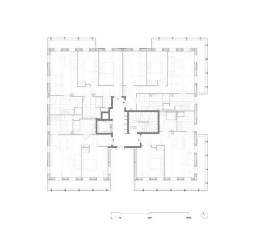
Grundriss 3. Obergeschoss E2B3 Nachnutzung

Bild 19/20

Grundriss 3. Obergeschoss E2B3 Nachnutzung

Bild: CoBe