Neue Räume für das Goethe-Institut in Myanmar
Bild 37/47
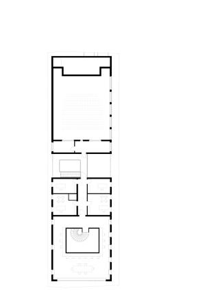
Erdgeschoss Bibliothek und Auditorium
Bild: Oliver Gerhartz Architektur