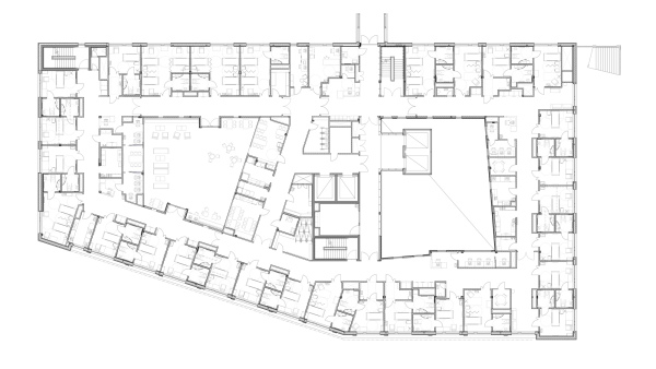
Neubau im Haraldsplass Hospital von C.F. Møller
Bild 19/30
Grundriss 1. Obergeschoss
Bild: C.F. Møller Architects