Neubau fürs English National Ballet von Glenn Howells
Bild 23/31
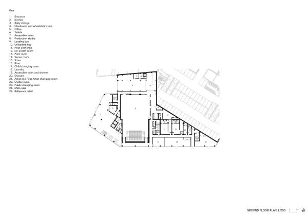
Grundriss Erdgeschoss
Bild: Glenn Howells Architects