Die Meldung in Bildern
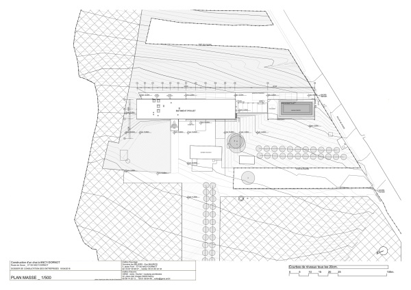
Hangar fürs Weingut
Neubau bei Metz von GENS
Bild 18/23
Lageplan
Bild: GENS