Die Meldung in Bildern
Freiraum in einer schmalen Gasse
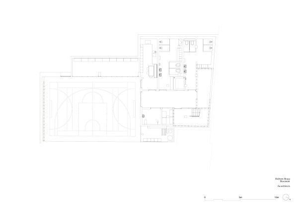
Nachbarschaftshaus von 6a Architects in London
Bild 15/18
Untergeschoss
Bild: 6a architects