Pandora, Muziekpaleis, Utrecht, NL Architects, architectuurstudio HH, Patrick Fransen, Herman Hertzberger, aTA, Jo Coenen, Crossoverzaal, Tivoli Vredenburg, Musik, Jazz, Club, Hochhaus, Veranstaltungssaal, Party, Veranstaltungsgebäude, Dancing, Limbok, Kop van Limbok, Pieter Bannenberg, Walter van Dijk, Kamiel Klaasse, Florent Le Corre

Bild 33/37

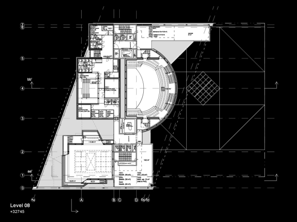
Bild: NL Architects (Overall concept: architectuurstudio HH)