Die Meldung in Bildern
Wie ein Instrument
Musikschule in Manchester eröffnet
Bild 17/27
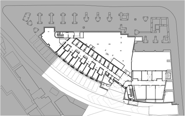
Grundriss UG tief