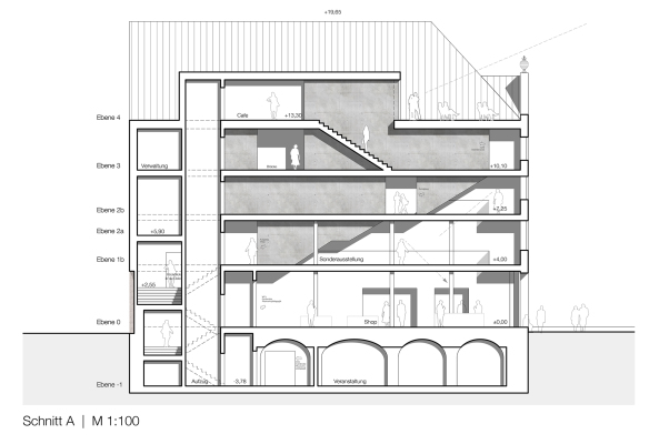
Museumswettbewerb in Lübeck entschieden
Bild 17/50
1. Preis: TMH Architekten (Lübeck)
Bild: siehe Architekten