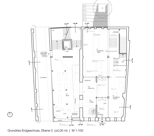
Museumswettbewerb in Lübeck entschieden
Bild 12/50
1. Preis: TMH Architekten (Lübeck)
Bild: siehe Architekten