Die Meldung in Bildern
Glanz im Schatten von Venedig
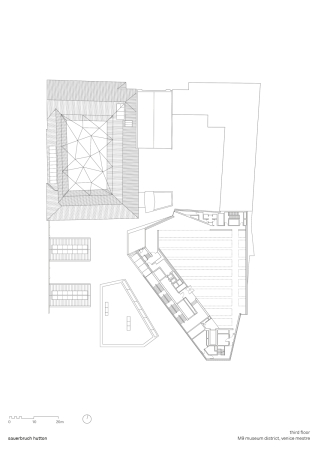
Museumsquartier M9 in Mestre von Sauerbruch Hutton
Bild 29/30
Bild: Sauerbruch Hutton