Museumserweiterung von Nieto Sobejano in München
Bild 17/24
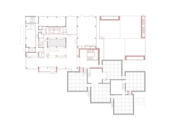
Grundriss Erdgeschoss
Bild: Nieto Sobejano