Die Meldung in Bildern
Friendly Alien in Zwolle
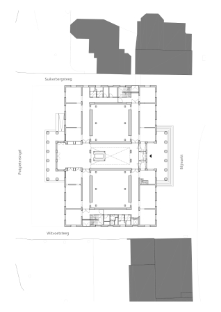
Museumserweiterung von Bierman Henket
Bild 19/26
Grundriss EG
Bild: Bierman Henket Architekten