Die Meldung in Bildern
Geschwungener Übergang
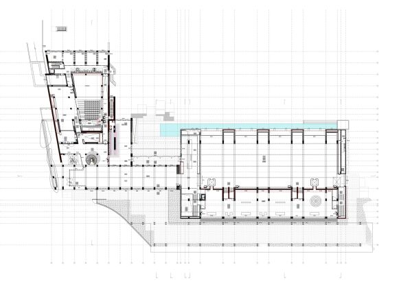
Museumserweiterung in Lissabon von KKAA, OODA und VDLA
Bild 21/31
Bild: KKAA