Die Meldung in Bildern
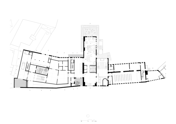
34.494 Backsteine für Hasselt
Museumserweiterung in Belgien von Francesca Torzo
Bild 46/53
Grundriss EG
Bild: Francesca Torzo