Die Meldung in Bildern
Ein paar Fässer aufmachen
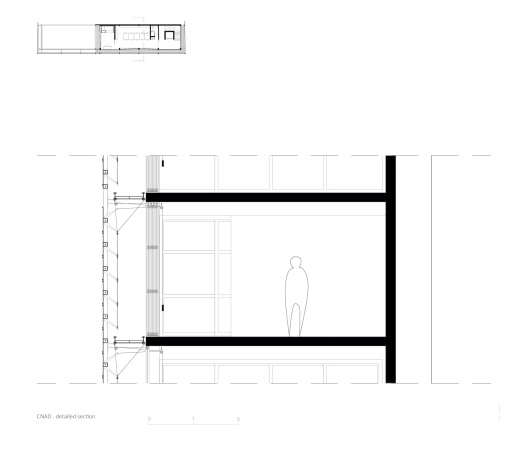
Museumsanbau auf den Kapverden
Bild 33/45
Detailschnitt
Bild: RamosCastellano arquitectos