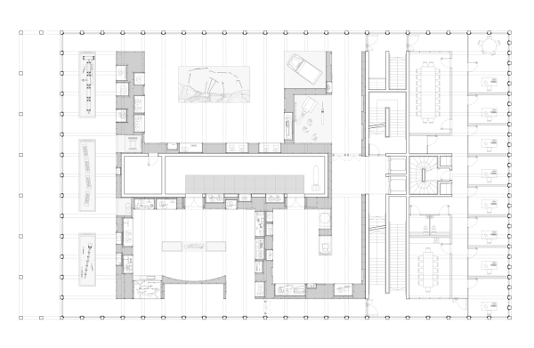
Museum von Projectiles in Arromanches-les-Bains
Bild 33/41
Detail Grundriss Ausstellungsrundgang
Bild: Projectiles